CÔNG TY HÚT HẦM CẦU MINH ĐẠI

Hố ga là gì? Cách thiết kế hố ga thoát nước chi tiết

Hố ga là tên gọi không còn xa lạ gì với chúng ta đúng không nào, vai trò của hố ga rất quan trọng trong việc thoát nước thải của hộ gia đình, hay khu vực. Để tìm hiểu một cách rõ nhất về hố ga và những tác dụng của hố ga trong đời sống thực tiễn bài viết dưới đây sẽ cũng cấp một cách đầy đủ cho bạn.
Hố ga là từ ngữ không còn xa lạ với chúng ta, tuy nhiên không phải ai cũng biết rõ hố ga là gì? và nó có công dụng gì? Hãy tìm hiểu với công ty chúng tôi nhé.

Hố ga là gì? Hố ga tiếng Anh là gì?

Hố ga tên trong tiếng Anh là Manhole. Hố ga là một bộ phận quan trọng trong hệ thống thoát nước thải, nước thải, nước mưa, tại các hộ gia đình, khu dân cư, ngoài đường phố. Tác dụng của những cái hố ga là nơi tập trung, luân chuyển nước, ngoài ra còn có tác dụng lắng đọng các chất thải, cặn bẩn, đất cát để dòng nước chảy qua hố ga được trong hơn. Mỗi hố ga đều có miệng thiết kế có nắp đậy để thuận tiện cho việc nạo vét hố ga định kỳ giúp giữ vệ sinh môi trường trong lành, sạch sẽ, đảm bảo an toàn cho gia đình.
 
Khi nước chảy qua hố ga chất thải sẽ bị chìm xuống dưới hố ga, giúp đường cống thoát nước không bị tắc. Mỗi đoạn cống sẽ sẽ có một hố ga nằm ở dưới như vậy thay vì phải thông tắc cống cả một đoạn dài thì chỉ cần nạo vét hố ga sạch sẽ. Hoặc có thể hiểu hố ga là một đoạn cống thoát nước thải để nhưng được xây thấp hơn hẳn xuống, để khi nước chảy qua sẽ giữ lại ở hố ga chất bẩn, rác rưởi, đất cát sẽ lắng xuống hố.
 
Hố ga là gì và lắp đặt ở đâu
Hố ga là gì và lắp đặt ở đâu
 

Tác dụng thực tiễn của hố ga trong đời sống thực tế


Hiện nay có rất nhiều mẫu hố ga đa dạng hình dạng, kích thước và chất liệu khác nhau. Một số như:
 
1. Hố ga thu nước, và giúp thoát nước thải gia đình
 
Sinh hoạt hằng ngày của gia đình, thải ra một lượng chất thải nhất định hố ga sẽ thực hiện nhiệm vụ thu nước và thoát nước. Thu nước thải từ hệ thống công trình tự hoại sau khi lắng lọc cũng như nguồn nước thải từ hệ thống thoát nước sàn, khu vực nấu
ăn, chậu rửa, nhà tắm..Hố ga sẽ thoát nước thải sàn, nước thải gia đình ra hệ thống cống thoát chung.
 
2. Hố ga thoát nước mưa
 
Trong những ngày mưa to gây ngập lụt, hố ga sẽ thu nước mưa chảy vào bên trong để luân chuyển đến đường cống của hệ thống thoát nước chính, giữ cho nhà cửa, đường phố thông thoáng không bị ngập.
 
3. Hố ga tách mỡ
 
Bạn có tin hố ga có chức năng tách mỡ không? Hãy cùng thử tìm hiểu nhé. Trong sinh hoạt hằng ngày, đặc biệt là nước thải từ các nhà hàng, quán ăn, hay nhà bếp sẽ có chứa một lượng lớn dầu mỡ từ thức ăn thừa. Với đặc tính của dầu ăn khó tan trong nước chúng bám vào các ống thành những cặn bã, sau này sẽ trở thành một trong những nguyên nhân gây tắc cống. Với thiết kế thông minh hố ga sẽ sẽ giữ lại dầu mỡ và các chất thải để lưu thông nhanh hơn.
 
4. Hố ga chống triều cường
 
Sử dụng hố ga gia đình, hay hố ga kỹ thuật thông minh đang được đánh giá là biện pháp để chống triều cường, ngăn chặn và giảm tình trạng nước thải từ hệ thống thoát nước công cộng tràn ngược và gây ô nhiễm môi trường, ảnh hưởng sức khỏe, khó
khăn trong sinh hoạt.
 
5. Hố ga chống hôi, ngăn mùi
 
Đa số các nước thải đều có mùi hôi khó chịu nếu không được xử lý sẽ để lại mùi hôi khó chịu. Hố ga với ngăn mùi Busadco có thể ngăn mùi chất lượng và đem lại hiệu quả cao.
 
Các loại hố ga phổ biến nhất hiện nay

Nhiều loại hố ga phổ biến hiện nay với đầy đủ chủng loại đáp ứng nhu cầu của khách hàng:
 
1. Hố ga bê tông cốt thép đúc sẵn
 
Đây là sự lựa chọn của những khách hàng có yêu cầu tiết kiệm về chi phí cũng như mong muốn một sản phẩm hố ga chắc chắn. Được sản xuất đồng loạt nên chất lượng của mẫu hố ga rất đồng đều, dễ lắp đặt, nhưng lại có độ chính xác cao. Bạn có
thể yêu cầu kích thước với số lượng lớn, và có thể tự đúc.
 
Bạn có thể tham khảo mẫu bê tông đúc sẵn của Công ty hút hầm cầu Minh Đại. Phần cấu kiện thân hố ga và  tấm đan bê tông cốt thép đúc sẵn có mác 250, bê tông lót móng M100, lỗ chờ có đường kính D660, nắp hố ga thu nước mưa bằng Composite có tải trọng 250Kg
 
2. Hố ga xây bằng gạch
 
Đây là loại hố ga khác phổ biến trong các gia đình hiện nay. Sử dụng các nguyên liệu thông dụng như gạch, xi măng, cát vàng, thép phi, đá, sỏi. Bạn có thể biến hóa kích thước cho phù hợp với nhu cầu sử dụng.
 
3.Hố ga bằng nhựa
 
Chất liệu nhựa làm hố ga cũng rất đa dạng, phổ biến nhất vẫn là PVC. Nhựa Tiền Phong được nhiều người sử dụng có các loại hố ga, bao gồm phân làm 2 nhánh, 3 nhánh, 4 nhánh. 
 
Thi công, lắp đặt ở cả các vị trí bị hạn chế về không gian như là các con hẻm nhỏ trong các khu dân cư và những khu vực có nền đất yếu. Thời gian thi công nhanh chóng hơn so với đúc bê tông hơn rất nhiều. Không cần các thiết bị chuyên dụng phức tạp
để cẩu, sắp xếp nhựa bê tông. Ghép nối dễ dàng với các ống nhựa thoát nước của các hộ gia đình. Chịu được các hóa chất có trong nước thải tốt hơn so với hố ga bê tông khác. Độ bền cũng tốt hơn so với loại hố ga bê tông.
 
4. Hố ga thoát sàn inox
 
Với màu sắc sáng bóng, độ bền cao, lại không bị hoen gỉ được nhiều quý khách ưu tiên lựa chọn trong công trình nhà mình. Khả năng chống mùi cao của hố ga thoát sàn inox đem lại hiệu quả cao, dễ làm sạch, tuy nhiên giá cả cũng rất đắt. Phễu thoát nước thường xuyên phải ở trong môi trường nước, ẩm ướt nên sẽ rất dễ bị hoen gỉ. Hơn nữa nếu các thiết bị khác dễ dàng có thể thay mới thì ngược lại phễu thoát nước được gắn cố định với ống thông nước dưới mặt sàn nên việc thay mới rất phức tạp và tốn chi phí. Khả năng chịu lực nên hoàn toàn có thể sử dụng từ mười năm trở lên.
 
5. Hố ga Composite
Nắp hố ga
Hố ga Composite
 
Với tính năng vượt trội dễ dàng vận chuyển, đồ bền cao chịu được áp lực lớn không thua kém gang, thép. Đa dạng trong kiểu dáng. Trọng lượng nhẹ bằng ¼ so với gang thép nên dễ dàng trong khâu vận chuyển. Việc lắp đặt thi công cũng trở nên dễ
dàng, sản phẩm không bị gãy vụn, không tạo ra tiếng ồn khi có xe đi qua.. Ngoài ra sản phẩm hố ga Composite còn có khả năng chịu được sự ăn mòn và phá hủy của môi trường, độ cứng và độ bền bền cơ học cao
 

Hướng dẫn cách xây dựng hố ga theo đúng tiêu chuẩn kỹ thuật.

 
Tiêu chuẩn thiết kế hố ga thoát nước
 
Bạn cần nắm rõ các tiêu chuẩn trong thiết kế hố ga thoát nước. Nhằm xác định chính xác từng khoảng cách giữa các hố ga thoát nước với nhau:
 
Khoảng cách giữa các hố ga thoát nước
 
Theo chuyên gia, thông thường khoảng cách giữa các hố ga trên bản vẽ dao động từ 7 - 20m/1 hố, tùy thuộc vào từng loại công trình khác nhau khoảng cách này có sự khác biệt, trong đó:
 
- Khoảng cách giữa các hố ga ở thành phố là: 20m/1 hố
- Khoảng cách giữa các hố ga cho xí nghiệp, công ty: 10 - 15m/ 1 hố
- Khoảng cách hố trong nhà, gia đình, nhà hàng: 7 - 10/1 hố
 
Lưu ý: Nếu giảm khoảng cách giữa các hố ga thoát nước thì sẽ tăng hiệu quả lưu thông của dòng chảy, hạn chế tình trạng tắc nghẽn cống và dễ dàng khắc phục sự cố khí ngập úng.
 
Về kích thước hố ga tiêu chuẩn
 
- Kích thước của bộ phần này sẽ phụ thuộc vào từng loại công trình khác nhau:
 
- Kích thước hố ga ở thành phố sẽ có tiêu chuẩn: 200x150x200cm (Dài x rộng x sâu)
 
- Hố ga xí nghiệp tiêu chuẩn có kích thước: 100x80x200cm
 
- Kích thước hố ga kỹ thuật cho gia đình: 40x30x50cm
 
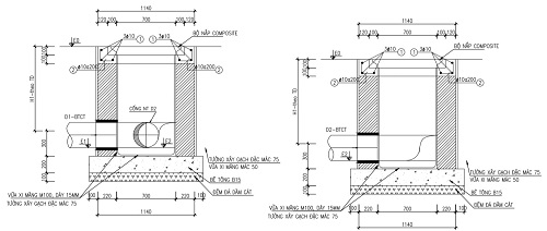
Sơ đồ bản vẽ hố ga chi tiết
 
Sơ đồ sẽ giúp bạn có một cái nhìn tổng thể, trực quan nhất và dễ dàng hình dung ra hình dáng của bộ phận xử lý nước thải. Mỗi một công trình hố ga sẽ có có một loại bản vẽ khác nhau, không sử dụng cùng một loại bạn vẽ.
 
bản vẻ hố ga thoát nước
 
Một số lưu ý khi xây dựng, thi công hố ga
 
Nên lưu ý đáp ứng các tiêu chuẩn kỹ thuật, ngoài ra còn xem xét dưới góc độ phong thủy, kinh phí, xây dựng, nguyên liệu sử dụng, chính sách bảo hành.
 
- Phong thủy: tuyệt đối không thi công hố ga tại vị trí trung của ngôi nhà như phòng thờ, phòng khách,phòng ngủ. Dưới nhà vệ sinh ở tầng trệt và dưới gầm cầu thang là những vị trí lý tưởng để thi công. Khi xây dựng hố ga thoát nước thải gia đình thì ngoài xem xét về mặt phong thủy mà còn phải chú ý đến kiến trúc của ngôi nhà một cách tổng quát để đặt ở vị trí phù hợp nhất, vì sau khi đã xây dựng sẽ rất khó có thể sửa chữa, thiết kế lại.
 
Thông thường, nhiều gia đình hiện nay thường thường sẽ tận dụng phần móng ngầm của ngôi nhà để xây hố ga, điều này sẽ giúp cho gia đình tiết kiệm diện tích và tận dụng không gian tối đa của ngôi nhà.
 
- Kinh phí xây dựng:Kinh phí sẽ bao gồm: nguyên liệu vật liệu, thuê nhân công. Bạn nên dự trù kinh phí và tính toán đến những chi phí cần thiết tránh những chi phí phát sinh không cần thiết.
 
- Nguyên liệu: không nên ham rẻ nên sử dụng những vật liệu chất lượng, giá cả phải chăng có độ bền cao.
 
- Bảo hành: nên đặt vấn đề trước khi thi công với đơn vị thi công, nêu rõ cam kết bảo hành rõ ràng để đảm bảo quyền lợi của
mình.
 
Một số mẫu thiết kế hố ga thoát nước phổ biến nhất hiện nay
 
Mẫu hố ga là gì
Mẫu hố ga phổ biến.

Một số lưu ý trong quá trình sử dụng hố ga
 
Trong quá trình sử dụng bạn nên lưu ý những điều sau để không ảnh hưởng đến công trình, duy trì chất lượng hố ga:
 
Tự trang bị kiến thức cho bản thân về xử lý hố ga hôi: Không phải khi nào hố ga cũng hoạt động hiệu quả, sẽ có lúc hố ga thoát sàn bị khô, đường ống thoát nước bị tắc dẫn đến mùi hôi khó chịu. Việc trang bị các cách xử lý mùi hôi hố ga tạm thời là rất cần
thiết.
 
Luôn đậy nắp cho hố ga:nhàm giảm tránh rác thải, xác côn trùng, động vật và các dị vật rơi xuống bên dưới khiến sự luân chuyển dòng nước gặp khó khăn, thấm chí gây tắc nghẽn. Kiểm tra hố ga định kỳ: Lượng chất thải sẽ tăng theo từng ngày vì vậy cần định kỳ nạo vét định kỳ tránh bị tắc. 
 
Trên đây là một số những thông tin về hố ga của chúng tôi, ngoài ra còn có một số lưu ý trong quá trình sử dụng. Nên cần nạo vét định kỳ hố ga hãy liên hệ với công ty hút hầm cầu Minh Đại chúng tôi khi cần nhé!
Lưu ý: Hãy giữ mã giảm giá này khi sử dụng dịch vụ của công ty chúng tôi quý khách đưa mã giảm giá này cho nhân viên sẽ được giảm giá
Bấm vào đây nhận mã khuyến mãi để được giảm giá đơn hàng thông cống, rút hầm cầu